ВАРЯГ XS — будинок для пари / 1–2 гостей

Компактний заміський будинок з продуманим плануванням і терасою. Ідеальний для усамітненого відпочинку, вихідних і оренди.

Швидка заявка

Залиште контакти — ми запропонуємо час і відповімо на питання.

Быстрая запись на просмотр (UA)

Про формат XS

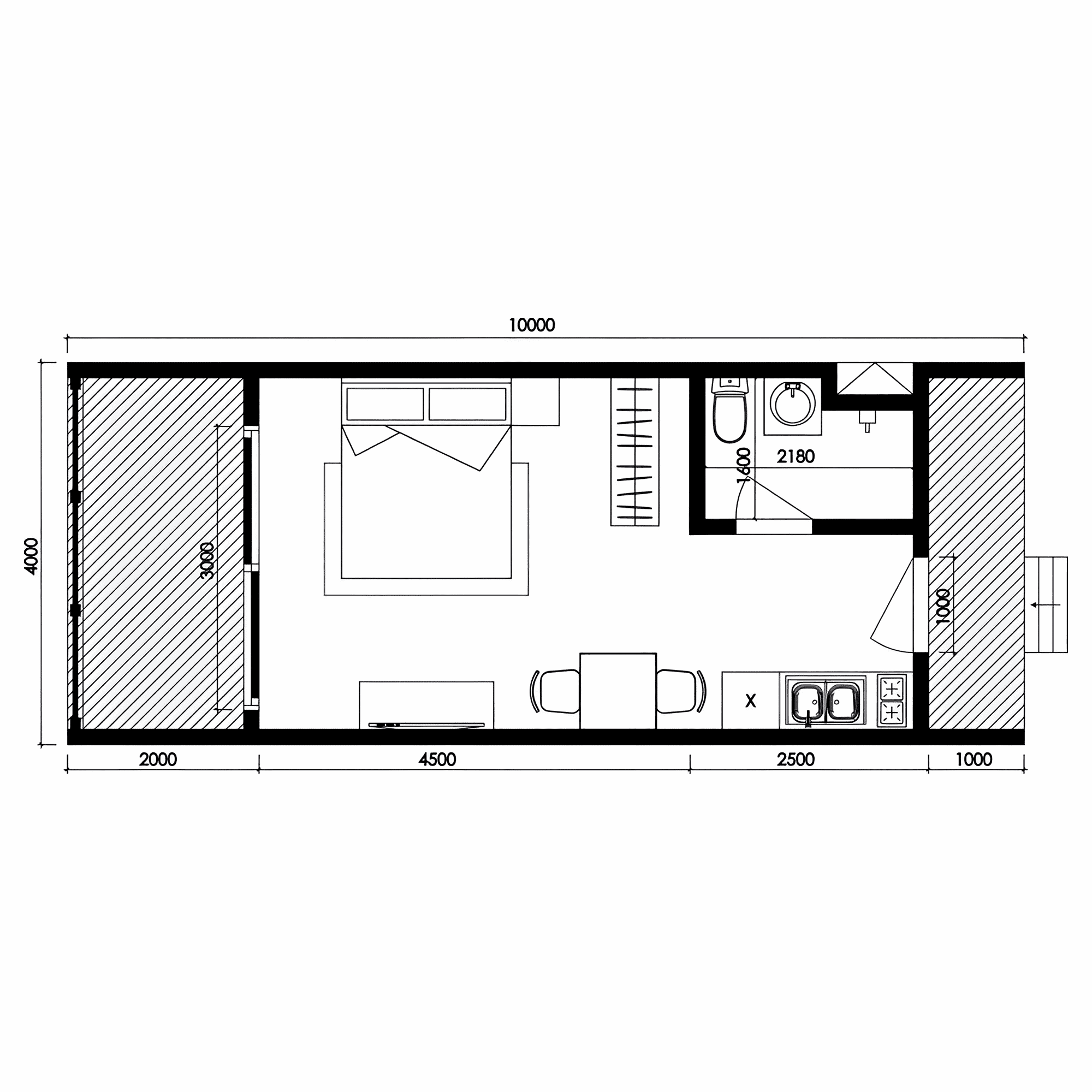
Формат XS — це компактний заміський будинок для 1–2 гостей.
Планування включає необхідні житлові зони, терасу і повністю готову комплектацію.
Підходить для усамітненого відпочинку, романтичних поїздок і короткострокової оренди.

Основні параметри

34 м²

Площа будинку

12 м²

Тераса

1-2

Гості

1

Спальня

Планування проекту «Варяг XS»

Комплектація

Входить у вартість

Меблі

Техніка (холодильник, плита, бойлер)

Посуд

Освітлення

Текстиль

Wi-Fi

Вуличні меблі

Зона для барбекю

Опції

Кондиціонер

Покращене оздоблення

Покращена техніка

Камін

Розумний дім

Автономність (сонячні панелі, акумулятори)

Технічні характеристики

Технологія

SIP-панелі

Утеплення

Пінополістирол

Кровля

Енергоефективна

Опалення

Електро / тепловий насос

Вода

Свердловина

Каналізація

Є

Вентиляція

Є

Сонячні панелі

Опція

Для кого підходить

Пари

Затишний формат для вихідних і романтичних поїздок.

Поціновувачи природи

Тиша, ліс, озеро — ідеальне перезавантаження.

Оренда

Зрозуміла комплектація, зручно здавати гостям.

Сценарії використання

Вихідні на природі

Романтична поїздка

Перезавантаження в тиші

Короткострокові заїзди

Віддалена робота «на природі»

Оренда

Термін будівництва

4 місяці

Термін залежить від комплектації та черги робіт — уточнимо при записі.

Порівняння форматів

Формат
Для кого
Площа
Місткість
XS
Пара
34 м²
1–2
L
Сім'я
62 м²
3-4
XL
Велика сім'я
104 м²
5-8

Бажаєте подивитися будинок наживо?

Покажемо територію, будиночки та розповімо, який формат підійде вам.

Відповімо на питання: ціна, комплектація, терміни, оренда/інвестиції.

Швидка заявка

Залиште контакти — ми запропонуємо час і відповімо на питання.

Быстрая запись на просмотр (UA)